
Небольшой бетонный дом для семьи в Сингапуре
---
Этот проект — архитектурный ответ на запрос заказчиков на небольшой семейный дом, в котором могут проживать несколько поколений и который мог бы позволить его жильцам, другим членам семьи и друзьям делиться и наслаждаться обширными зонами общего пользования, не нарушая их конфиденциальность. К этому подходили как к осуществлению баланса, который максимизировал допустимую оболочку здания и выражал этот максимальный объём как внешнюю «оболочку», одновременно создавая как можно больше качественного пространства на его компактной площадке.

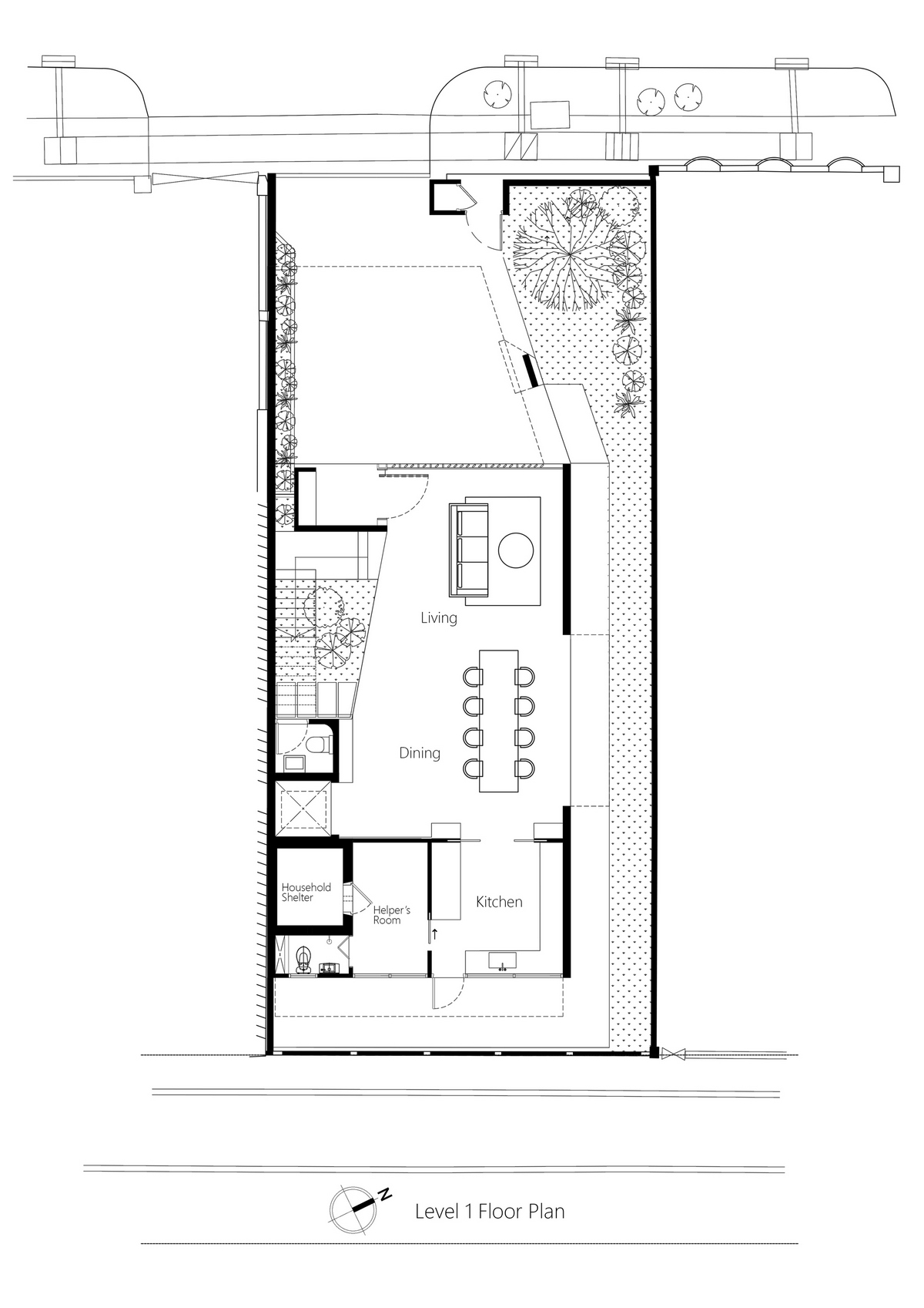
Типология городских/пригородных домов часто является полем битвы между конкурирующими аспектами государственного регулирования, частной экономики и творческого дизайна в Сингапуре с дефицитом земли. Одним из распространенных типов является двухквартирный дом, представляющий собой жилище, которое разделяет граничную стену со своим соседом, фактически допуская только трёхсторонний фасад снаружи и который чаще всего находится всего в нескольких метрах от соседа. Две железобетонные стены с лицевой стороны служат сильными флангами, содержащими пространственные программы, а пористость и конфиденциальность со стороны улицы уравновешиваются фасадной завесой и зеленью, которая органично представляет фасад дома, как контраст (и дополнение) к строгому и контролируемому поведению его сторон.
Цветочные горшки в естественно вентилируемом разрезе между ванными комнатами и стеной для вечеринок обеспечивают экологический фильтр для перекрестной вентиляции и, в свою очередь, помогают создать значимую связь с открытым пространством, которой не хватало на существующем участке. Внутренняя планировка концептуализирована вокруг создания воздушного колодца, который захватывает как можно больше естественного света и воздуха, и, отводя основные жилые помещения и спальни от стены для вечеринок, создаёт естественно вентилируемый разрез. Эта стратегия организации как можно большего количества внутренних пространств вокруг этого воздушного колодца и усвоения аспектов этих пространств фокусируется на использовании тех немногих вещей, которые всё ещё совершенно бесплатны, но очень важны на небольшом участке — света и воздуха, сохраняя при этом конфиденциальность от соседей.
























Название: Дом в Терубоке (House At Terubok)
Расположение: Сингапур
Архитектура: CDG Architects
Строительство: 2022
Общая площадь: 396 м2

Типология городских/пригородных домов часто является полем битвы между конкурирующими аспектами государственного регулирования, частной экономики и творческого дизайна в Сингапуре с дефицитом земли. Одним из распространенных типов является двухквартирный дом, представляющий собой жилище, которое разделяет граничную стену со своим соседом, фактически допуская только трёхсторонний фасад снаружи и который чаще всего находится всего в нескольких метрах от соседа. Две железобетонные стены с лицевой стороны служат сильными флангами, содержащими пространственные программы, а пористость и конфиденциальность со стороны улицы уравновешиваются фасадной завесой и зеленью, которая органично представляет фасад дома, как контраст (и дополнение) к строгому и контролируемому поведению его сторон.
Цветочные горшки в естественно вентилируемом разрезе между ванными комнатами и стеной для вечеринок обеспечивают экологический фильтр для перекрестной вентиляции и, в свою очередь, помогают создать значимую связь с открытым пространством, которой не хватало на существующем участке. Внутренняя планировка концептуализирована вокруг создания воздушного колодца, который захватывает как можно больше естественного света и воздуха, и, отводя основные жилые помещения и спальни от стены для вечеринок, создаёт естественно вентилируемый разрез. Эта стратегия организации как можно большего количества внутренних пространств вокруг этого воздушного колодца и усвоения аспектов этих пространств фокусируется на использовании тех немногих вещей, которые всё ещё совершенно бесплатны, но очень важны на небольшом участке — света и воздуха, сохраняя при этом конфиденциальность от соседей.
























Название: Дом в Терубоке (House At Terubok)
Расположение: Сингапур
Архитектура: CDG Architects
Строительство: 2022
Общая площадь: 396 м2
Источник: zefirka.net
Комментарии (0)
{related-news}
[/related-news]